Interessante Lage: Haus mit großem Grundstück
Schiffdorf
144.000 €
Kaufpreis
135.4 m²
Wohnfläche
6,0
Zimmer
Adresse
Die Schleppe 10
Sellstedt
27619 Schiffdorf
Preis
Kaufpreis
144.000 €
ZZg. MwSt.
–
Provisionspflichtig
Ja
Außen Courtage
3,57 %
Typ
Einfamilienhaus
Zimmer
6,0
Separate WCs
Flächen
Wohnfläche
135.4 m²
Grundstücksfläche
847 m²
Ausstattung
Heizungsart
Zentral
Befeuerung
Elektro
Dachform
Krueppelwalmdach
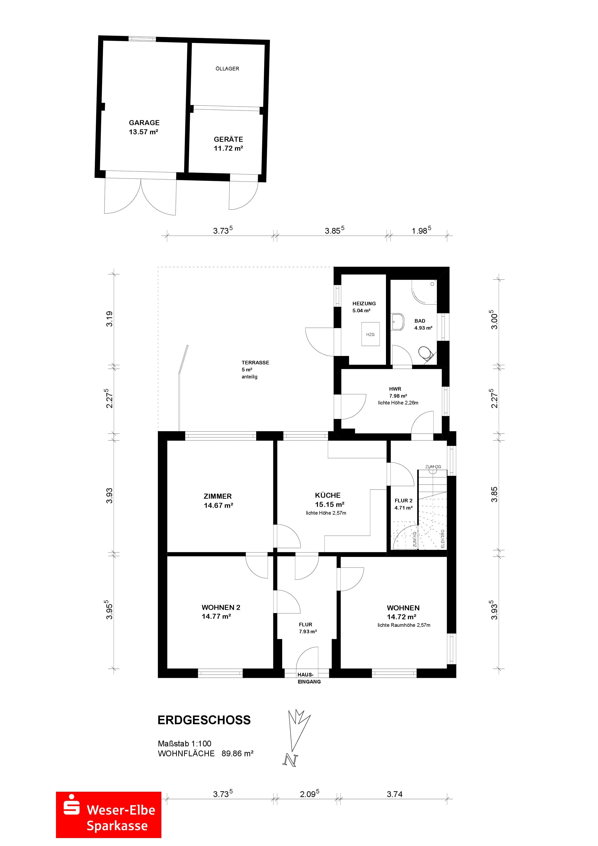
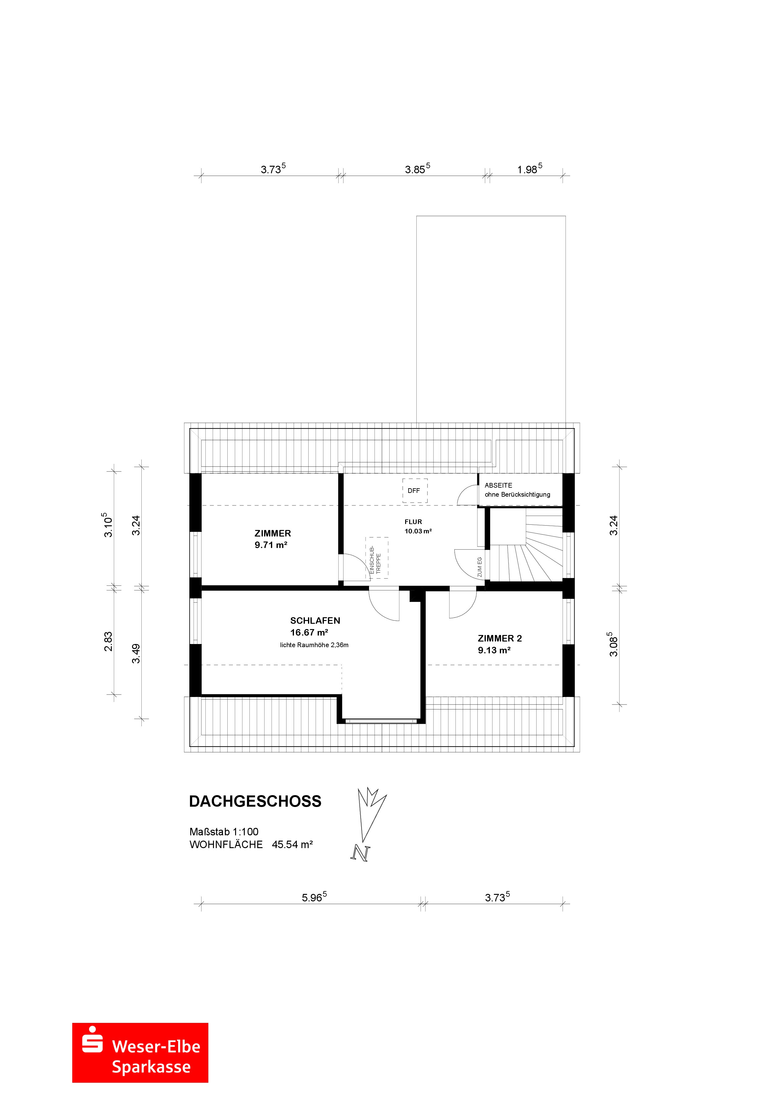
Objektbeschreibung
Dieses interessante, freistehende Einfamilienhaus ist derzeit frei und kann kurzfristig übernommen werden. Es befindet sich auf einem rund 847 m² großen Grundstück im Ortskern von Sellstedt. Im Erdgeschoss (ca. 90 m²) sind die geräumige Küche mit Essecke, das helle Wohn-Esszimmer, zwei flexibel nutzbare Zimmer, ein Hauswirtschaftsbereich und ein Duschbad, welches vor ca. 13 Jahren modernisiert wurde. Im Dachgeschoss (rd. 45 m²) ergänzen insgesamt drei gut aufgeteilte Zimmer das Raumangebot. Gestalten Sie im Rahmen der anstehenden Renovierungs- und Sanierungsarbeiten Ihr neues Zuhause nach Ihren persönlichen Bedürfnissen und Wünschen. Der Kellerraum, der Anbau, in dem sich auch die Heizungsanlage befindet, und das Garagengebäude bieten Ihnen nützlichen Stau- und Lagerraum. Das gut geschnittene, pflegeleicht angelegte Grundstück bietet Ihnen noch viele Möglichkeiten: ob Sandkasten und Schaukel, Sonnenterrasse, Pool- oder Teichanlage oder ein Gemüsebeet sowie ausreichend Spiel- und Rasenfläche. Besichtigen Sie dieses gut aufgeteilte Familienhaus in gefragter Lage von Schiffdorf-Sellstedt.
Zustand
Baujahr
1935
Zustand
Sanierungsbeduerftig
Energiepass
Wertklasse
H
Ausstelldatum
2025-06-10
Gültig bis
2035-06-09
Gebaeudeart
wohn
Jahrgang
2014
Primärenergieträger
Öl, Elektroenergie
Endenergiebedarf
280,94
Lage
Sellstedt ist eine Ortschaft in der Gemeinde Schiffdorf im Landkreis Cuxhaven und liegt östlich von Bremerhaven. Das Dorf verfügt über unterschiedliche öffentliche Einrichtungen wie Kindergarten, Grundschule, Jugendraum, Dorfladen und Freiwillige Feuerwehr. Darüber hinaus gibt es einen Sportplatz, eine Turnhalle, Tennisplätze, zwei Reithallen und eine Schießsportanlage. Sellstedt besitzt einen Haltepunkt an der Bahnstrecke Bremerhaven-Buxtehude. Von Sellstedt aus dauert es ca. 15 Minuten mit dem Auto nach Schiffdorf, 25 Minuten nach Bremerhaven und der A 27.
Sonstige Angaben
Grundsteuer B zurzeit 204,95 EUR pro Jahr, Gebäudeversicherung zurzeit 335,41 EUR pro Jahr. Die Warmwasseraufbereitung erfolgt derzeit über Durchlauferhitzer bzw. Boiler. Das Krüppelwalmdach ist reparatur- bzw. sanierungsbedürftig. Für das rückwärtige Nachbargrundstück wird eine Baulast aufgrund der vorhandenen Grenzbebauung der Garage eingetragen. Weitere Objektdetails wie z. B. die Objektanschrift, den Energieausweis, einen Lageplan sowie ggf. ergänzende Objektunterlagen erhalten Sie zusammen mit unserem Web-Exposé. Möchten mehrere Interessenten die angebotene Immobilie erwerben, kann es auf Wunsch der Verkäuferseite zu einer Vergabe im nachgeschobenen Bieterverfahren kommen. Wir empfehlen, vor der Vereinbarung eines Besichtigungstermines den möglichen Finanzierungrahmen durch Ihr Kreditinstitut prüfen zu lassen. Vielen Dank.
VERBRAUCHERINFO
1. Maklerleistung ist der Nachweis der Gelegenheit zum Abschluss eines Vertrages bzw. Vermittlung eines Vertrages über eine Immobilie gegen die Courtagezahlungspflicht des Kunden
2. Unternehmer,Anschrift,Beschwerdeadressat
LBSi NordWest, Himmelreichallee 40, 48149 Münster, Tel:0251/973233-997, eMail:info@lbsi-nw.de
GF:Martin Englert, Volker Goldbeck
3. Es besteht ein Widerrufsrecht
4. Weitere Infos: verbraucherinfo.lbsi-nordwest.de

Weser-Elbe Sparkasse
www.wespa.de

Herr Benjamin von Döhren
makler@wespa.de
benjamin.von.doehren@wespa.de
0471 4800-29072

Weser-Elbe Sparkasse
www.wespa.de

Herr Benjamin von Döhren
makler@wespa.de
benjamin.von.doehren@wespa.de
0471 4800-29072
























