Startseite Immobilien
Kutenholz
Für Handwerker und Selbermacher!
Sanierungsbedürtiges Einfamilienhaus in ruhiger Lage
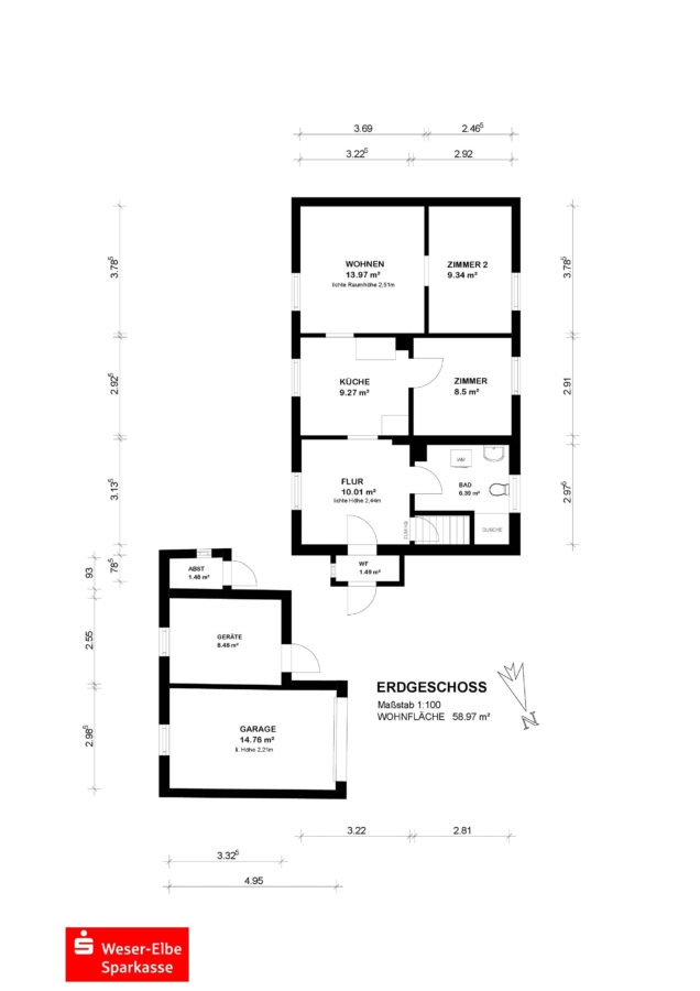
Dieses kleine Einfamilienhaus aus ca. 1955 bietet Ihnen die Gelegenheit, ein eigenes Projekt nach Ihren Vorstellungen zu verwirklichen. Auf einer Wohnfläche von rund 59 m² und einem Grundstück von ca. 595 m² lässt sich hier ein gemütliches Zuhause mit Charme und Persönlichkeit schaffen.
Das Haupthaus aus den 50er-Jahren wurde ca. 1963 um einen Anbau mit kleinem Kellerbereich ergänzt und verfügt zusätzlich über ca. 15,7 m² Nutzfläche im Keller. Zum Angebot gehört außerdem ein separater Schuppen mit integrierter Garage und Lagerraum – ideal für Werkzeug, Geräte oder Hobby.
Das Haus wird derzeit mit einer Gasheizung aus dem Jahr 2003 beheizt und ist an eine Kleinkläranlage angeschlossen.
Der Garten bietet viel Potenzial für grüne Oasen, Spielbereiche oder Gemüsebeete. Auch das vorhandene Gartenhaus könnte nach einer Sanierung wieder zum praktischen Rückzugsort oder Stauraum werden.
Das Objekt ist vollumfänglich sanierungsbedürftig – bietet dafür aber eine hervorragende Basis für alle, die sich ein kleines Eigenheim schaffen oder ein überschaubares Modernisierungsprojekt angehen möchten.
Ob als Einsteigerimmobilie, Projekt für Handwerker oder zukünftiges Ruheparadies: Hier wartet ein Haus mit Geschichte und Gestaltungsspielraum auf Sie.
Individuelle Ausstattungsmerkmale:
Grundsteuer B zurzeit 163,17 EUR pro Jahr, Gebäudeversicherung zurzeit 211,88 EUR pro Jahr.
Weitere Objektdetails wie z. B. die Objektanschrift, den Energieausweis, einen Lageplan sowie ggf. ergänzende Objektunterlagen erhalten Sie zusammen mit unserem Web-Exposé.
Möchten mehrere Interessenten die angebotene Immobilie erwerben, kann es auf Wunsch der Verkäuferseite zu einer Vergabe im nachgeschobenen Bieterverfahren kommen.
Wir empfehlen, vor der Vereinbarung eines Besichtigungstermines den möglichen Finanzierungrahmen durch Ihr Kreditinstitut prüfen zu lassen. Vielen Dank.
Jetzt kostenlos und unverbindlich Ihr Suchprofil speichern und neue Immobilienangebote automatisch per E-Mail erhalten:
Registrieren Sie sich jetzt in unserem Interessentenportal und erhalten Sie frühzeitig Zugang zu neuen Immobilienangeboten. Profitieren Sie von maßgeschneiderten Angeboten, die genau zu Ihren Suchkriterien passen.
Die Registrierung ist unverbindlich, dauert nur wenige Sekunden und verschafft Ihnen einen echten Vorteil für Ihre Immobiliensuche. Jetzt kostenlos registrieren:
http://www.wespa.de/wunschliste
Wir freuen uns darauf, Sie auf dem Weg zu Ihrer neuen Immobilie zu begleiten.
VERBRAUCHERINFO
1. Maklerleistung ist der Nachweis der Gelegenheit zum Abschluss eines Vertrages bzw. Vermittlung eines Vertrages über eine Immobilie gegen die Courtagezahlungspflicht des Kunden
2. Unternehmer,Anschrift,Beschwerdeadressat
LBSi NordWest, Himmelreichallee 40, 48149 Münster, Tel:0251/973233–997, eMail:info@lbsi-nw.de
GF:Martin Englert, Volker Goldbeck
3. Es besteht ein Widerrufsrecht
4. Weitere Infos: verbraucherinfo.lbsi-nordwest.de
Kutenholz ist eine niedersächsische Gemeinde in der Samtgemeinde Fredenbeck im Landkreis Stade. Neben dem Hauptort Kutenholz gehören auch die Orte Mulsum, Sadersdorf, Essel, Aspe und Bullenholz zur Gemeinde. Der Ort verfügt über unterschiedliche öffentliche Einrichtungen wie Kindergarten, Grundschule, Spielplätze und Freiwillige Feuerwehr. Darüber hinaus gibt es Sportplatz, Sporthalle und Tennisanlage, Ärzte und Einkaufsmöglichkeiten. Über den Bahnhof Kutenholz besteht Anschluss an die Eisenbahnen und Verkehrsbetriebe Elbe-Weser (EVB). Die Verbindungen sind in den Hamburger Verkehrsverbund (HVV) eingebunden. Kutenholz ist zudem durch Busverbindungen (KVG Linie 2370) nach Stade über Fredenbeck sowie durch Regionalbusse (Linie 2725, VNN) Richtung Buxtehude angebunden.
Wenn Sie die Immobilien-Karte anzeigen, übertragen Sie Daten an Google Maps (Datenschutzerklärung).
Die dargestellte Position der Immobilie ist nur eine ungefähre Angabe.