Imposantes Anwesen mit viel Potenzial

21781 Cadenberge, Einfamilienhaus zum Kauf

Kontaktdaten

Oliver Pohlig, Weser-Elbe Sparkasse

Objektdaten

  • Objekt-ID
    8261-1001
  • Objekttypen
    Einfamilienhaus, Haus
  • Adresse
    21781 Cadenberge
    (Geversdorf)
    Niedersachsen
  • Etagen im Haus
    1
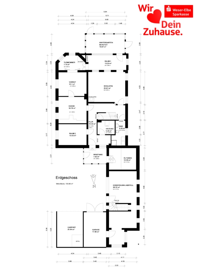
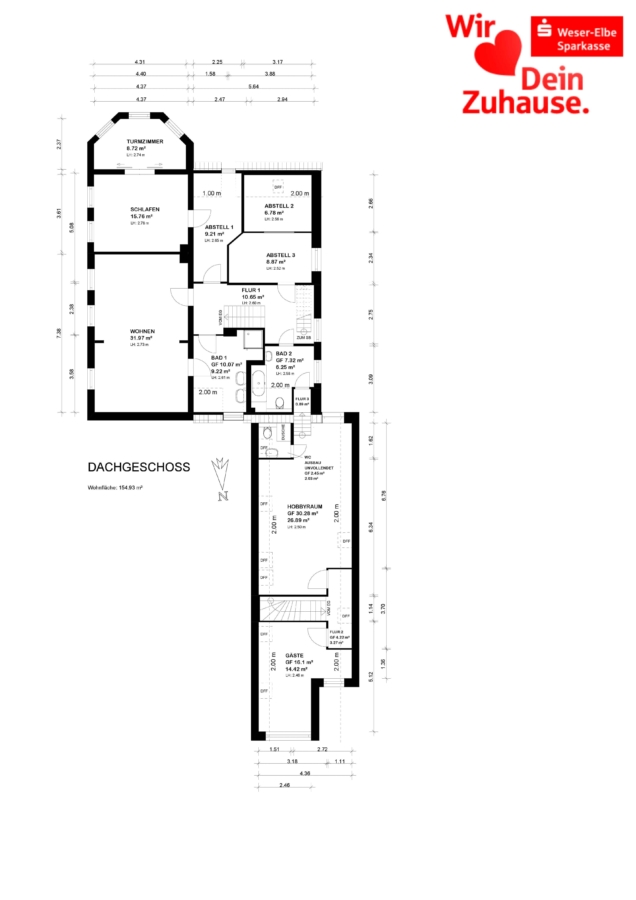
  • Wohnfläche ca.
    308,20 m²
  • Nutzfläche ca.
    155 m²
  • Grund­stück ca.
    3.345 m²
  • Zimmer
    8
  • Heizungsart
    Zentralheizung
  • Wesentlicher Energieträger
    Öl
  • Baujahr
    1870
  • Zustand
    gepflegt
  • Erschließung
    vollerschlossen
  • Bauweise
    Massiv
  • Verfügbar ab
    Nach Vereinbarung
  • Käufer­provision
    3,57 % inkl. MwSt.
  • Kaufpreis
    279.000 EUR

Ausstattung / Merkmale

  • ✓ Dielenboden
  • ✓ Fliesenboden
  • ✓ Garten/Gartennutzung
  • ✓ Laminatboden
  • ✓ Massivbauweise
  • ✓ Teilunterkellert

Energieausweis

  • Energieausweistyp
    Bedarfs­ausweis
  • Ausstellungsdatum
    23.03.2025
  • Gültig bis
    22.03.2035
  • Gebäudeart
    Wohngebäude
  • Baujahr lt. Energieausweis
    ca. 1870
  • Primärenergieträger
    Öl
  • Endenergie­bedarf
    151,36 kWh/(m²·a)
  • Energie­effizienz­klasse
    E
0 25 50 75 100 125 150 175 200 225 250+ H G F E D C B A A+ H G F E D C B A A+ Endenergiebedarf 151,36 kWh/(m²·a)

Objekt­beschreibung

Beschreibung

Aufgepasst! Zum Verkauf steht hier ein ganz besonderes Anwesen. Zuletzt war hier ein mobiler Pflegedienst ansässig. Nun wartet diese beeindruckende Immobilie auf neue Eigentümer mit tollen Ideen.

Alle wichtigen Daten auf einen Blick:

Grundstück:

  • ca. 3.345 m²

Wohnhaus:

  • ca. 308,20 m² Wohnfläche
  • ca. 155 m² Nutzfläche und Zubehörräume
  • Baujahr: ca. 1870 / Anbau 1999
  • Bauweise: massiv
  • Eindrucksvoller Turm mit Turmzimmern
  • Teilkeller
  • Fenster: Kunststoff mit Isolierverglasung
  • Ölheizung aus dem Jahre 1988
  • Große Fläche mit Stellplätzen

Nebengebäude:

  • Gartenhaus

Objektübergabe:
Die Übergabe erfolgt in Absprache.

Hat dieses interessante und seltene Angebot Ihr Interesse geweckt?
Dann präsentiere ich es Ihnen gerne im Rahmen eines Besichtigungstermins und freue mich auf Ihre Kontaktaufnahme.

Sonstiges

Grundsteuer B zurzeit 696 EUR pro Jahr, Gebäudeversicherung zurzeit 362,79 EUR pro Jahr.

Weitere Objektdetails wie z. B. die Objektanschrift, den Energieausweis, einen Lageplan sowie ggf. ergänzende Objektunterlagen erhalten Sie zusammen mit unserem Web-Exposé.

Wir empfehlen, vor der Vereinbarung eines Besichtigungstermines den möglichen Finanzierungrahmen durch Ihr Kreditinstitut prüfen zu lassen. Vielen Dank.
VERBRAUCHERINFO
1. Maklerleistung ist der Nachweis der Gelegenheit zum Abschluss eines Vertrages bzw. Vermittlung eines Vertrages über eine Immobilie gegen die Courtagezahlungspflicht des Kunden
2. Unternehmer,Anschrift,Beschwerdeadressat
LBSi NordWest, Himmelreichallee 40, 48149 Münster, Tel:0251/973233–997, eMail:info@lbsi-nw.de
GF:Martin Englert, Volker Goldbeck
3. Es besteht ein Widerrufsrecht
4. Weitere Infos: verbraucherinfo.lbsi-nordwest.de

Lage

Geversdorf ist ein idyllisches Dorf im Landkreis Cuxhaven in Niedersachsen und liegt direkt an der Oste, einem Nebenfluss der Elbe. Mit seiner naturnahen Lage und der gut erhaltenen historischen Bausubstanz bietet Geversdorf eine hohe Lebensqualität und einen besonderen Charme.

Das Ortsbild wird geprägt von gepflegten Einfamilienhäusern, alten Bauernhöfen und der beeindruckenden St.-Andreas-Kirche, die auf einer historischen Wurt steht. Die Oste mit ihrer markanten Klappbrücke verbindet Geversdorf mit der gegenüberliegenden Flussseite und ist Teil der Deutschen Fährstraße – eine Tourismusroute, die sich der Geschichte von Fähren und Brücken widmet.

Für Naturliebhaber bietet Geversdorf zahlreiche Möglichkeiten zur Erholung. Spaziergänge entlang der Oste, Bootstouren oder Fahrradausflüge durch die weiten Marschlandschaften der Region machen den Ort besonders attraktiv. Die ländliche Umgebung sorgt für Ruhe und Erholung, während größere Städte wie Cuxhaven oder Stade gut erreichbar sind.

Kulturell und gemeinschaftlich ist Geversdorf sehr aktiv. Der Verein „Dorfgemeinschaft Geversdorf e.V.“ organisiert regelmäßig Veranstaltungen wie das traditionelle Brückenfest oder das Winterfest. Auch das Heimatmuseum, das zahlreiche maritime und historische Exponate beherbergt, gibt Einblicke in die Geschichte des Ortes.

Dank der guten Anbindung über die Landesstraße 111 ist Geversdorf sowohl mit dem Auto als auch mit öffentlichen Verkehrsmitteln gut erreichbar. Einkaufsmöglichkeiten, Restaurants und weitere Infrastruktur finden sich in den nahegelegenen Orten Cadenberge und Hemmoor.

Insgesamt bietet Geversdorf eine ideale Kombination aus ländlicher Ruhe, naturnaher Lage und aktiver Dorfgemeinschaft – ein perfekter Wohnort für Menschen, die dem hektischen Stadtleben entfliehen möchten, ohne auf eine gute Anbindung zu verzichten.

Die dargestellte Position der Immobilie ist nur eine ungefähre Angabe.