Saniert und bereit zum Einzug

21762 Otterndorf, Doppelhaushälfte zum Kauf

Kontaktdaten

Oliver Pohlig, Weser-Elbe Sparkasse

Objektdaten

  • Objekt-ID
    8660-1001
  • Objekttypen
    Doppelhaushälfte, Haus
  • Adresse
    21762 Otterndorf
    Niedersachsen
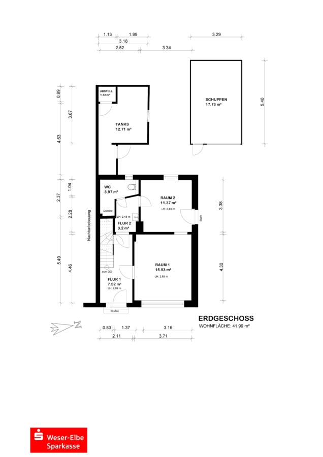
  • Wohnfläche ca.
    79 m²
  • Grund­stück ca.
    279 m²
  • Zimmer
    4
  • Heizungsart
    Zentralheizung
  • Wesentlicher Energieträger
    Gas
  • Baujahr
    1895
  • Letzte Modernisierung
    2025
  • Zustand
    modernisiert
  • Erschließung
    vollerschlossen
  • Bauweise
    Massiv
  • Käufer­provision
    3,57 % inkl. MwSt.
  • Kaufpreis
    239.000 EUR

Ausstattung / Merkmale

  • ✓ Altbau
  • ✓ Dielenboden
  • ✓ Dusche
  • ✓ Estrichboden
  • ✓ Garten/Gartennutzung
  • ✓ Massivbauweise
  • ✓ Satteldach
  • ✓ Teilunterkellert

Energieausweis

  • Energieausweis

    ca. 1961 Aufstockung
  • Energieausweistyp
    Bedarfs­ausweis
  • Info
    ca. 1961 Aufstockung
  • Ausstellungsdatum
    20.11.2025
  • Gültig bis
    19.11.2035
  • Gebäudeart
    Wohngebäude
  • Baujahr lt. Energieausweis
    ca. 1895
  • Primärenergieträger
    Gas
  • Endenergie­bedarf
    143,05 kWh/(m²·a)
  • Energie­effizienz­klasse
    E
0 25 50 75 100 125 150 175 200 225 250+ H G F E D C B A A+ H G F E D C B A A+ Endenergiebedarf 143,05 kWh/(m²·a)

Objekt­beschreibung

Kurzbeschreibung

Zentral im Nordseebad Otterndorf

Beschreibung

Diese charmante Doppelhaushälfte in Otterndorf bietet eine Wohnfläche von ca. 79 m² auf einem großzügigen Grundstück von 279 m². Das ursprüngliche Baujahr des Hauses liegt im Jahr 1895, zusätzlich wurde 1961 ein rückwärtiger Anbau im oberen Bereich ergänzt, der die Wohnfläche sinnvoll erweitert.

In den vergangenen Jahren wurde die Immobilie umfassend saniert und modernisiert. Dazu gehören unter anderem:

  • Erneuerung der gesamten Elektrik inklusive Schaltschrank
  • Austausch sämtlicher Fenster sowie der Haus- und Terrassentür
  • Einbau einer neuen Heizungsanlage
  • Sanierung des Badezimmers mit Dusche
  • Installation einer Fußbodenheizung im Wohnzimmer
  • Dämmung der Außenwände und Decken
  • Einbau einer neuen Bodentreppe

Diese Modernisierungen verleihen dem Haus einen zeitgemäßen Wohnkomfort, während der historische Charme des Altbaus erhalten geblieben ist. Die massive Bauweise sorgt für Langlebigkeit und eine solide Bausubstanz.

Der gepflegte Garten lädt zum Entspannen ein und bietet zusätzlichen Raum für Freizeit und Erholung. Ein Teilkeller schafft praktischen Stauraum und erweitert die funktionalen Möglichkeiten des Hauses. Das moderne Badezimmer mit Dusche sowie die hochwertig sanierten Bereiche erfüllen zeitgemäße Ansprüche an Komfort und Alltagstauglichkeit.

Durch die gelungene Kombination aus historischem Charakter und umfangreichen modernen Sanierungen entsteht ein besonders attraktiver Wohnraum, der sowohl für Familien als auch für Einzelpersonen geeignet ist.

Ausstattung

Individuelle Ausstattungsmerkmale:

  • teilw. Fußbodenheizung
  • KFZ-Stellplatz
  • Garten

Sonstiges

Grundsteuer B zurzeit 161,15 EUR pro Jahr.

Weitere Objektdetails wie z. B. die Objektanschrift, den Energieausweis, einen Lageplan sowie ggf. ergänzende Objektunterlagen erhalten Sie zusammen mit unserem Web-Exposé.

Möchten mehrere Interessenten die angebotene Immobilie erwerben, kann es auf Wunsch der Verkäuferseite zu einer Vergabe im nachgeschobenen Bieterverfahren kommen.

Wir empfehlen, vor der Vereinbarung eines Besichtigungstermines den möglichen Finanzierungrahmen durch Ihr Kreditinstitut prüfen zu lassen. Vielen Dank.
VERBRAUCHERINFO
1. Maklerleistung ist der Nachweis der Gelegenheit zum Abschluss eines Vertrages bzw. Vermittlung eines Vertrages über eine Immobilie gegen die Courtagezahlungspflicht des Kunden
2. Unternehmer,Anschrift,Beschwerdeadressat
LBSi NordWest, Himmelreichallee 40, 48149 Münster, Tel:0251/973233–997, eMail:info@lbsi-nw.de
GF:Martin Englert, Volker Goldbeck
3. Es besteht ein Widerrufsrecht
4. Weitere Infos: verbraucherinfo.lbsi-nordwest.de

Lage

Otterndorf, die charmante Kleinstadt an der niedersächsischen Nordseeküste, verbindet maritimes Lebensgefühl mit einer hervorragenden Infrastruktur. Geprägt von historischen Fachwerkhäusern, einer lebendigen Altstadt und der direkten Lage an Medem, Elbe und Nordsee, bietet der Ort eine einzigartige Mischung aus Küstenidylle und städtischer Bequemlichkeit.

Die malerische Altstadt lädt mit kleinen Geschäften, Cafés und Restaurants zum Bummeln und Verweilen ein. Für den täglichen Bedarf stehen zahlreiche Einkaufsmöglichkeiten, Ärzte, Apotheken, Schulen und Kindergärten zur Verfügung. Besonders geschätzt wird Otterndorf für seine hervorragenden Freizeit- und Erholungsmöglichkeiten: Der weitläufige Grünstrand mit Badelagune, Wassersportangeboten, Spielplätzen und Spazierwegen entlang des Deichs bietet ideale Bedingungen für Familien, Naturfreunde und Aktivurlauber.

Durch die direkte Nähe zur Elbmündung, den charmanten Hafen sowie das gut ausgebaute Rad- und Wanderwegenetz lässt sich die Landschaft auf vielfältige Weise erleben. Auch kulturell hat Otterndorf mit Museen, Veranstaltungen und traditionellen Festen viel zu bieten.

Die gute Verkehrsanbindung – unter anderem durch den Bahnhof mit regelmäßigen Verbindungen nach Cuxhaven und Hamburg – macht den Ort sowohl für Pendler als auch für Feriengäste attraktiv.

Mit seiner freundlichen Atmosphäre, der naturnahen Lage und den vielseitigen Freizeitmöglichkeiten präsentiert sich Otterndorf als lebenswerter Wohn- und Ferienort, der ganzjährig begeistert.