Baugrundstücke – Der Traum vom eigenen Zuhause!

21745 Hemmoor, Wohngrundstück zum Kauf

Kontaktdaten

Stev Weihmeister, Weser-Elbe Sparkasse

Objektdaten

  • Objekt-ID
    6505-1003-3
  • Objekttypen
    Grundstück, Wohngrundstück
  • Adresse
    21745 Hemmoor
    Niedersachsen
  • Grund­stück ca.
    2.190 m²
  • Bebaubar nach
    Bebauungsplan
  • Erschließung
    vollerschlossen
  • Verfügbar ab
    nach Vereinbarung
  • Käufer­provision
    prov.frei
  • Kaufpreis
    237.230 EUR

Objekt­beschreibung

Kurzbeschreibung

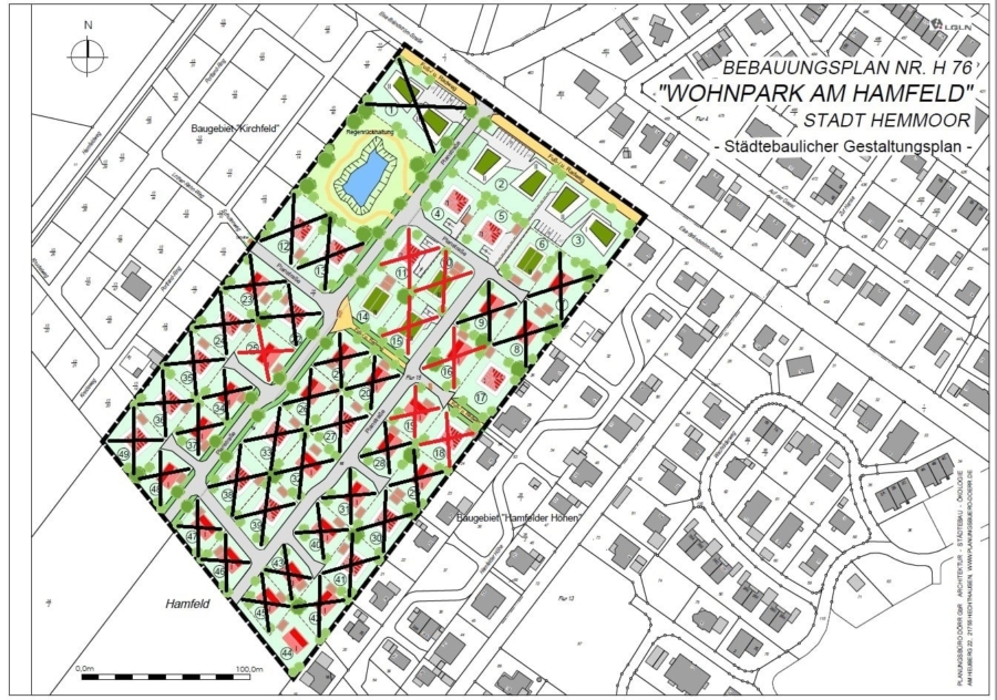
Wohnpark Am Hamfeld in Hemmoor

Beschreibung

Das neue Baugebiet – Wohnpark Am Hamfeld in Hemmoor: Hier warten zahlreiche Grundstücke auf Sie und Ihr Bauvorhaben. In ruhiger Wohnlage bieten die Grundstücke verschiedener Größe Platz sowohl für eingeschossige als auch für zweigeschossige Baukörper. Für das allgemeine Wohngebiet mit den Bereichen WA 1 und WA 2 richtet sich die zulässige Bebauung nach dem vorliegenden Bebauungsplan Nr. H 76 der Stadt Hemmoor. Die Grundstückskaufpreise beinhalten die öffentlichen Erschließungs- (Straßenbaukosten) und Kanalbaukosten (SW-/RW-Systeme) sowie Grundstücksanschlussleitungen mit Übergabeschächten für Schmutz- und Regenwasser. Die Beiträge und Kosten für die individuellen Hausanschlüsse wie zum Beispiel Strom, Wasser oder Telekommunikation sowie eine eventuelle Abmarkung des Grundstücks mit Grenzsteinen sind selbst zu tragen.
Die Baufirma hat die Erschließungsmaßnahmen am 20.01.2023 abgeschlossen, sodass die Baureife gegeben ist. Verwirklichen Sie innerhalb einer dreijährigen Bauverpflichtung Ihren Traum vom Eigenheim.

Sie haben Interesse? Nach Ihrer Anfrage erhalten Sie automatisch das Web-Exposé mit folgenden Unterlagen:
Anlage 1: Bebauungsplan
Anlage 2: Begründung zum Bebauungsplan
Anlage 3: Geotechnischer Bericht
Anlage 4: Nummerierten Grundstücksplan
Anlage 5: Preisliste
Anlage 6: Flurstücksübersicht mit Maßen
Anlage 7: Plan Erschließung Straßenbau
Anlage 8: Plan Erschließung Entwässerung
Anlage 9: Plan Erschließung Höhenplan

Sonstiges

Weitere Angebotsdetails wie z. B. den Bebauungsplan, einen Lageplan sowie ggf. ergänzende Unterlagen erhalten Sie zusammen mit unserem Web-Exposé.

Zur Reservierung eines Grundstücks übersenden Sie mir bitte eine Finanzierungs- bzw. Bonitätsbestätigung Ihres Kreditinstituts in der ungefähren Höhe des Gesamtvorhabens (sprich Grundstückskauf + Kosten des Baukörpers). Vielen Dank.
VERBRAUCHERINFO
1. Maklerleistung ist der Nachweis der Gelegenheit zum Abschluss eines Vertrages bzw. Vermittlung eines Vertrages über eine Immobilie gegen die Courtagezahlungspflicht des Kunden
2. Unternehmer,Anschrift,Beschwerdeadressat
LBSi NordWest, Himmelreichallee 40, 48149 Münster, Tel:0251/973233–997, eMail:info@lbsi-nw.de
GF:Martin Englert, Volker Goldbeck
3. Es besteht ein Widerrufsrecht
4. Weitere Infos: verbraucherinfo.lbsi-nordwest.de

Lage

Hemmoor ist eine Kleinstadt am westlichen Ufer der Oste und liegt im Landkreis Cuxhaven im Land Niedersachsen mit einer fabelhaften Nähe zur Elbe und zur Nordsee, einladend zu entspannten Tagen im Watt oder am Strand. Sie bietet von der Grundschule bis zum Gymnasium eine Fülle von Bildungsangeboten sowie eine große Anzahl an Sportmöglichkeiten inkl. Schwimmbad. Hemmoor verfügt über eine Vielzahl an Einkaufsmöglichkeiten für den täglichen Bedarf und auch Fachbetriebe sind hier ansässig. Die medizinische Versorgung durch verschiedene Fachärzte ist gesichert. Eine schnelle Verkehrsanbindung an die B 73 und die B 495 sowie den Hemmoorer Bahnhof mit Anbindung an die Bahnlinie Hamburg-Cuxhaven sind von Vorteil. Darüber hinaus profitieren Sie dabei vom HVV-Tarif. In der Hemmoorer Umgebung kann man herrliche Radtouren unternehmen. Die Wingst mit ihrem schönen Wald, dem Zoo, dem Aussichtsturm "Deutscher Olymp", dem Spiel- und Sportpark oder dem idyllischen Balksee liegt ganz in der Nähe. Der berühmte Kreidesee ist nach wie vor eine echte Attraktion für begeisterte Taucher. Die Bootsliebhaber kommen auf der nahe gelegenen Oste auf Ihre Kosten. Von hier aus gelangt man auf die Elbe und dann weiter Richtung Cuxhaven oder Hamburg. Die ländliche Gegend in der Samtgemeinde Hemmoor ist ideal für Familien mit Kindern. Einfach eine Gegend zum Wohlfühlen!

Die dargestellte Position der Immobilie ist nur eine ungefähre Angabe.